Select Page

Freiräume geniessen

Modernes Wohnen im alten Bauernhaus

Zentral und doch auf dem Land

Ideal für die Kleinfamilie

AKTUELL

Ab sofort: renovierte 4 1/2 Zimmerwohnung zu vermieten

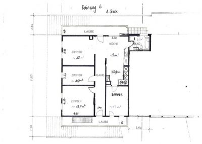
Beschreibung der 4 1/2 Zimmer Wohnung

Lage

Die Wohnung befindet sich im 1. Stock des “Chrütterhofs” einem im Jahre 1788 erbauten Bauernhaus  in Wangenried. Die Gemeinde Wangenried liegt im Oberaargau im Kanton Bern direkt an der Grenze zum Kanton Solothurn. Der Autobahnanschluss Wangen an der Aare ist in wenigen Minuten erreichbar.

Wohnen

Die zu vermietende Wohnung wurde neu renoviert und verfügt mit den frei gelegten, grösstenteils noch originalen Balken über ein urtümliches  Ambiente mit sehr viel Caché. Im 1. Stock befinden sich verteilt auf rund 100 m² 4 Zimmer, eine offene Küche mit Essplatz und das Bad. Drei Zimmer sind mit Eichenparkett ausgestattet, Gang und Küche sind mit Plattenboden versehen. Die exklusiv nutzbare Waschmaschine befindet sich im Bad, ein eigener Tumbler könnte zusätzlich darauf gestapelt werden. Im offenen Bereich zwischen Küche und Wohnzimmer wird aktuel ein Schwedenofen eingebaut.

Festnetz-Telefonie, Internet und Fernseh-Anschluss von Quickline sind vorhanden, die Abo- und Anschlusskosten sind nicht im Mietpreis inbegriffen.

Im Natursteinkeller kann zusätzlich zu den Aufbewahrungs-Regalen auch ein Tiefkühler gestellt werden, Stromanschluss ist vorhanden. Das Estrichzimmer befindet sich neben dem Heuboden. Ein Parkplatz im Freien ist im Mietpreis inbegriffen, ein weiterer Aussenparkplatz oder eine Doppelgarage können dazu gemietet werden.

Kleintierhaltung ist möglich, eine Haftpflichtversicherung setzen wir voraus. 

Mietpreise

Im Mietpreis ist ein Aussenparkplatz inbegriffen, weitere Parkmöglichkeiten nach Absprache.

Der Mietpreis für die Wohnung beträgt Fr. 1700.- exkl. Nebenkosten.

Die Nebenkosten berechnet für 2 Personen betragen pauschal Fr. 200.-.

 

Bildergalerie

Eingangsbereich

Wohnbereich

Küche, Bad und Keller

Stall und Umgebung